【中古マンション】朝日プラザ宇治 7階建5階部分

【中古マンション】朝日プラザ宇治 7階建5階部分

2090万円

<税込>

京都府宇治市

槇島町月夜6-1

JR奈良線

『宇治』駅

徒歩17分

写真ギャラリー

セールスポイント

〜物件特徴〜

◇新規リフォーム済み

・キッチン(システムキッチン浄水器付・食洗器)

・浴室(ユニットバス・浴室乾燥機付)

・洗面室(洗面化粧台、洗濯用水栓、洗濯パン)

・トイレ(タンク、便器本体、温水洗浄便座)

・その他(照明器具、建具)

・床(フローリング張替え)

・全室クロス張替え

・ハウスクリーニング

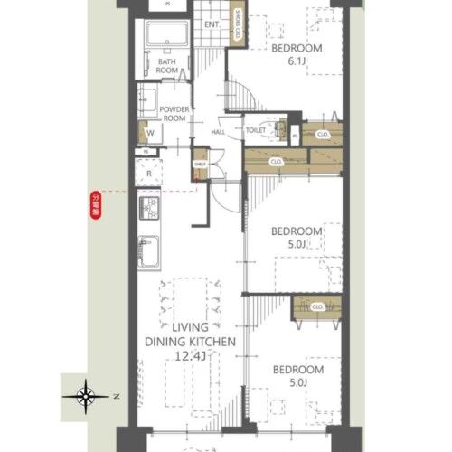
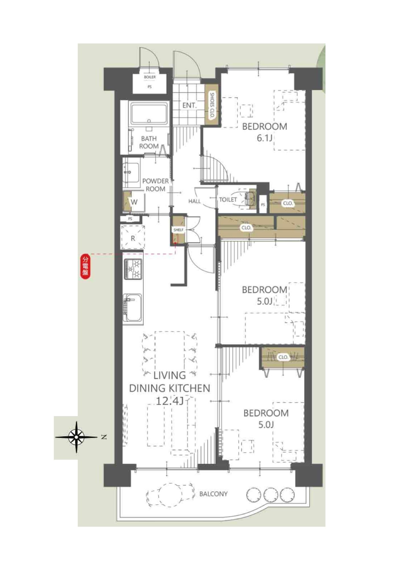
◇3LDKの間取り 約12.4帖のリビング

◇東向きバルコニー

担当者のコメント

3LDKの間取りでリビング約12.4帖ございます! 背面キッチンになっておりますので、スペースを活用していただけます😁 各居室ににクローゼットがありますのでお部屋全体がスッキリと片付きます☺️ 収納豊富なキッチンですので、料理しやすい設計となっております! 周辺が落ち着いた環境ですので、静かにお過ごしいただけます♪ スーパー・ドラッグストア・コンビニが徒歩圏内に揃っておりますので 生活しやすい環境となっております✌

販売価格

2090万円
<税込>
管理費:7930円
修繕積立金:9590円

所在地/交通

京都府宇治市
槇島町月夜6-1
JR奈良線
『宇治』駅

間取り

3LDK

現地地図

お問い合わせ

BOB Home(ボブホーム)

〒611-0001
京都府宇治市六地蔵札ノ辻町33
エバー・グリーン六地蔵駅前101

物件概要

物件種別

マンション

所在地

京都府宇治市
槇島町月夜6-1

交通

JR奈良線
『宇治』駅
徒歩17分

土地面積

土地面積計測方式

地目

宅地

用途地域

準工業地域

都市計画

市街化区域

地勢

平坦

私道負担

セットバック量

土地権利

接道状況

接道状況選択

建ぺい率

容積率

敷地全体面積

総戸/区画数

全284(戸・区画)

接道状況

建物・専有面積

63.98㎡

計測方式

壁芯

建物構造

鉄筋コンクリート造

バルコニー面積

9.35㎡

向き

延床面積

駐車場

駐車場料金:7.500円~8,000円/月

建物階数

地上7階

部屋階数

5階

築年月

1990/12

区画/部屋番号

現況

空家

引渡時期

即時

周辺環境

◇槇島中学校:徒歩10分
◇北宇治中学校:徒歩12分
◇万代宇治樋ノ口店:徒歩7分 ◇セブンイレブン宇治槇島町大幡店:徒歩8分 ◇ドラッグユタカ宇治店:徒歩10分 ◇フレンドマート宇治店:徒歩10分/

設備・条件

浴室乾燥機 / 3口以上コンロ / 食器洗乾燥機 / 全居室収納 / 全居室フローリング / エレベーター/

特記事項・備考

物件番号

20260410

情報更新日

2026年4月26日

次回情報更新日

2026年05月10日

引渡/入居時期

即時

取引態様

仲介

※価格は物件の代金総額を表示しており、消費税が課税される場合は税込み価格です。 (1000円未満は切り上げ。)
※写真に写っている、またはパース(絵)や間取り図に描かれている家具や車などは、特にコメントがない場合、販売価格に含まれません。
※敷地権利が定期借地権のものは価格に権利金を含みます。
※建築条件付き土地価格には、建物価格は含まれません。
※物件情報は、原則として情報提供日の2日前に最終確認した情報です。
※完成予想図はいずれも外構、植栽、外観等実際のものとは多少異なることがあります。
※モデルルーム・モデルハウス・展示場・ショールームの画像の場合、今回販売の物件と異なる場合があります。
※CG合成の画像の場合、実際とは多少異なる場合があります。
※物件特徴:販売戸数が複数の物件は、全ての住戸に該当しない項目もあります。
※完成後1年以上を経過した未入居物件が掲載される場合があります。ご了承ください。
※販売予定物件はすべて、販売開始するまで契約または予約の申込みはできません。
※購入の前には物件内容や契約条件についてご自身で十分な確認をしていただくようにお願いいたします。
※建築条件土地の情報内に掲載されている、建物プラン例は、土地購入者の設計プランの参考の一例であって、プランの採用可否は任意です。
※土地(建築条件なし)で「建物プラン例」が表記してある時、そのプラン例は特定の建築請負会社によるもので、当該建築請負会社以外で建てた場合、同様のものが同価格で建てられるとは限りません。また建築請負会社を特定するものではありません。
※建築条件付き土地とは、その土地に建築する建物の建築請負契約が、一定期間内に成立することを条件として売買される土地のことをいいます。建築請負契約成立に向けて設計プランを協議するため、土地購入者が自己の希望する建物の設計協議をするために必要な相当の期間の交渉期間が設定され、その期間内で希望を満たすプランが実現できたかどうかにより結論を出します。なお、この期間は概ね3ヶ月程度とされています。納得のいくプランが出来ず、建築請負契約が成立しない場合、土地売買契約は白紙に戻り、土地契約にかかった代金(土地代金、手付金など)は名目のいかんに関わらず、全て返却されます。




    お問い合わせ内容 [必須]




    ご希望の連絡方法
    メール電話


    私は営業・セールス目的ではありません。

    お気軽にお問い合わせください

    BOB Home ボブホーム

    〒611-0001
    京都府宇治市六地蔵札ノ辻町33
    エバー・グリーン六地蔵駅前101